

1
Собственное производство
с контролем качества

2
Баня под ключ, с печью и мебелью.
Срок изготовления от 7 дней.

3
Используем натуральные сертифицированные материалы

4
Изготовим и доставим готовую баню или построим на вашем участке

5
Гарантия на наши бани 36 месяцев
ВИДЕООБЗОРЫ КАРКАСНЫХ БАНЬ
ВИДЕООБЗОРЫ САМЫХ ПОПУЛЯРНЫХ ПРОЕКТОВ НАШИХ БАНЬ
НАШИ БАНИ
ТЕПЛЫЕ, КРАСИВЫЕ, НАДЕЖНЫЕ
БОЛЬШОГО РАЗМЕРА, СО ВТОРЫМ ЭТАЖОМ, МАНСАРДОЙ, КАМИНОМ, ПАНОРАМНЫМИ ОКНАМИ И СВОИМИ ПОЖЕЛАНИЯМИ
РАССЧИТАЙТЕ СТОИМОСТЬ БАНИ
ОКНА И ДВЕРИ
Окна с двойным остеклением могут быть как деревянные, так и пластиковые, открывающиеся
Двери могут быть как деревянные с пружинным фиксатором, так и стеклянные, с магнитным фиксатором
Ручки деревянные шлифованные: защита от перегрева и заноз
ВЫ САМИ ВЫБИРАЕТЕ ЦВЕТ БАНИ И НАЛИЧНИКОВ,
НА ЦЕНУ ЭТО НЕ ВЛИЯЕТ
Для защиты и декоративной отделки наружных поверхностей деревянных стен мы используем финскую фасадную колеруемую лазурь Tikkurila Valtti Color.
срок службы покрытия более 5 лет!
ПРОТИВОПОЖАРНАЯ БЕЗОПАСНОСТЬ
В наших банях мы используем пожаробезопасный утеплитель. Он обладает следующими свойствами: негорючий, устойчив к повышенной влажности, безопасен, хорошо держит тепло, долговечен.
Стены и потолок в углу, где стоит банная печь защищены от перегрева термостойкими огнеупорными плитами. Сэндвич труба дымохода изолирована негорючей каменной ватой.
Пол под печью полностью защищен огнеупорными
плитами и защитным экраном из нержавеющей стали
Перед печью обязательно устанавливаем предтопочную площадку чтобы искры или горящие угли не попали на пол.
Мы используем только специальные термо - влагостойкие светильники, провода и комплектующие.
В наших банях двери в парилку устанавливаются
только с деревянными ручками. А сама дверь открывается только наружу!
МЕБЕЛЬ
Дополнительно можно заказать:
Стол, лавочку, ступеньки на входе
Подсветку под полками
Декоративные решетки на светильники
Оборудовать мойку сантехникой и многое другое
ЭЛЕКТРОПРОВОДКА
Керамические пылевлагонепроницаемые светильники в каждой секции. Даже лампочки вкручены
Розетка и выключатель в цвет вагонки
Снаружи выведен провод для моментального подключения бани к электричеству
Моментальное подключение бани к электричеству
Закажите бесплатный выезд мастера на участок или консультацию по телефону
КОНТАКТЫ
Баня 6х2,5м, г. Октябрьск
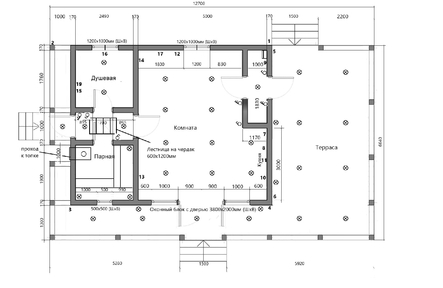
Баня 8,7х5м, веранда 3,6х2,6м с. Старая Бинарадка
Баня 6х3м, веранда 6х4м с.Тимофеевка
Баня 4х3м крыльцо 1,2х1,2м, г. Самара, СНТ Старая Алексеевка
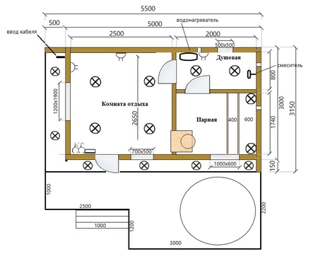
Баня 5,5х3,15м, с. Севрюкаево
Баня 4х2,4м, г. Тольятти, с. Подстёпки
Баня 4х4м, г. Жигулёвск
Баня 5х4м, крыльцо 1,2х1,2м г. Кинель
Баня 7х3,15м, г. Самара
Баня 6х4м, веранда 6х2м г. Тольятти, СНТ Комсомольск -2
Баня 5х4м, г. Сызрань
Баня 6х4м, веранда 6х2м г. Тольятти, СНТ Кировское
Баня 8,7х6,6м, веранда 6,6х4м с. Хрящёвка
Баня 6х3м, веранда 3х3м, г. Тольятти
Баня 7,5х3,3м, п. Мирный
Баня 8,5х4,5м, г. Тольятти
Баня 6х4м, веранда 6х2м п.о. Копылово
Баня 6х3м, г. Жигулевск
Баня 6х2,4м, веранда Г-образная 7,5х2м г. Кинель
Баня 7,7х3,4м, зона барбекю 4,1х3,7м г. Самара
Баня 5,5х3,15м, терраса под бассейн 5,5х2,2м с. Ягодное
Баня 5х4м, веранда 4х2м с. Солнечная поляна
Баня 6х4м, веранда 6х3,5м г. Самара, СДТ Черноречье
Баня 5х3м, г. Тольятти
Баня 6х4,25м, веранда 3,5х2м г. Самара СТ Сокские зори
Баня 5х4м, крыльцо 1,2х1,2м п. Прибрежный
Баня 7х3,35м г. Самара, п. Рубежный































































